- Gambaran Umum
- Produk Rekomendasi

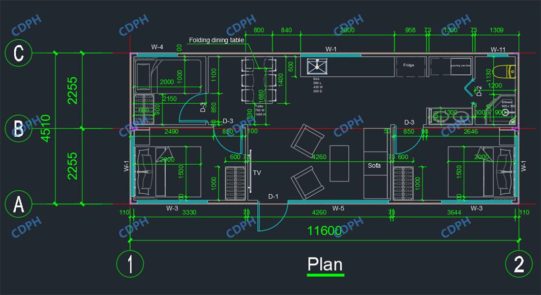
LR-403A dikombinasikan dari 2 rumah 40ft untuk memperluas ruang.
Denah lantai rumah moduler


Kami memiliki lebih dari 50 insinyur desain profesional yang siap melayani kebutuhan Anda.
Kami dapat mengubah tata letak sesuai permintaan Anda.
Di dalam Rumah


Selain rangka rumah, kami menyediakan semua yang Anda butuhkan: furnitur, peralatan, dan semua utilitas sudah terpasang. Kami menawarkan solusi satu atap untuk rumah lengkap.
Proses Produksi


